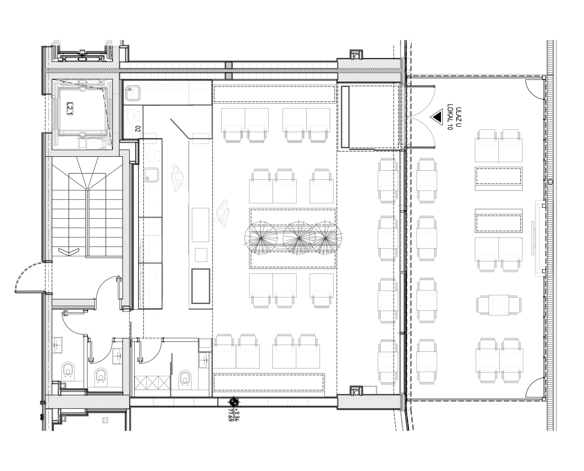
Akcenat u prostoru stavljen je na centralni separe, takozvano “sedalno ostrvo”, koji predstavlja i sedenje i deo za odlaganje stvari za konobare, ali i služi kao žardinjera.
Kada se spomene Le Petit Bistro, malo ko u Beogradu nije upoznat sa ovim ugostiteljskim brendom. LPB je svoju priču započeo još 2011. godine, a ubrzo je postao sinonim za ugostiteljstvo u gradu.
Nalaze se na nekoliko lokacija, a svojoj kolekciji pridodali su još jedan prostor, ali ovog puta u drugačijem konceptu – kao kafeteriju.
Novi Le Petit Bistro, koji se nalazi u okviru kompleksa Kennedy Residence na Novom Beogradu, doživeo je apsolutni vizuelni preobražaj, kako u enterijerskom, tako i u izgledu samog brenda (logo).

Jednom stranom u izlogu
Metal, beton, staklo i priroda – elementi koji su bili inicijalni za stvaranje novog Le Petit Bistroa vizuelnog i prostornog identiteta. Lokal u kome se kafeterija nalazi je kvadratnog oblika, sa jednom stranom u izlogu. To je u velikoj meri predodredilo mnoge odluke.
Pre svega, organizacija prostora se ogleda u simetriji sedenja. Monolitni, veliki šank je pozicioniran paralelno sa staklenim izlogom, tj. fasadom u zadnjoj zoni prostora.

Akcenat je na centralnom separeu, koji predstavlja i sedenje i deo za odlaganje stvari za konobare, ali i služi kao žardinjera.
Ova kafeterija je autentična ne samo u oblikovnom smislu, već i u pogledu detalja enterijera. Leva i desna strana su skoro identične – što nije uobičajna stvar u savremenom dizajnu.
Akcenat je na centralnom separeu, takozvanom „sedalnom ostrvu“, koji predstavlja i sedenje i deo za odlaganje stvari za konobare, ali i služi i kao žardinjera.

Stvaranje iluzije “nečega iza”
Autor je želeo da sačini trodimenzionalni pečat na bočnim zidovima iza separea za sedenje, tako što je betonske štanglice napravio određeni rad i ritam, gde se svetlosnim efektima (wall washer) menja ambijent, a stvaraju senke.
Metalna mreža ispred ovog “ispisa” stvara utisak očuvanja zida, a nasumična ogledala na mreži daju efekat mikroprozora koji reflektuju prostor i posetiocu stvaraju iluziju “nečega iza”.

Centralna zona sedenja drugačijim tonom poda izdvaja se od zone šanka i ulazne zone.
Efekat vizuelnog presecanja prostora, ali ne i fizičkog, ogleda se i kroz rad na podu, gde se centralna zona sedenja drugačijim tonom poda izdvaja od zone šanka i ulazne zone.
Smireni zemljani tonovi, tonovi iz prirode, tonovi kafe, betona, metala i rđe u kontrastu su sa zelenom bojom brenda i prirode.

Umetnički murali za autentičnost prostora
Autentičnost prostoru je pridodata i muralima slikarke Stojane Ćurčić, u zonama zastakljene bašte i ženskog toaleta. Snažan koncept, više muški, jasno definisan.
Svaki projekat Parch Studija je poseban. Specifičnost dizajna i posebnost s kojim arhitekta Vladimir Paripović pristupa novom zadatku ogleda se kroz svaki od njegovih enterijera. Novi Le Petit Bistro tome govori u prilog.

Grafički prilog

Foto-galerija
Faktografija
- projekat: Le Petit Bistro
- mesto: Kennedy Residence, Novi Beograd
- godina: 2023.
- površina: 90 m2
- autor: Parch Studio (Vladimir Paripović)
- foto: Miloš Martinović



