Isprva određen monumentalnošću svog neposrednog konteksta, stan je pažljivim projektantskim potezima prekomponovan u funkcionalan i prozračan prostor koji odiše mirom i toplinom.
Stan BVM 31 nalazi se u objektu izgrađenom 1948. godine u Beogradu po projektu arhitekte Ludviga Tomorija, u modernističkom stilu, koji spolja odlikuje monumentalna fasada sa stubovima, a iznutra masivni konstruktivni sklop.
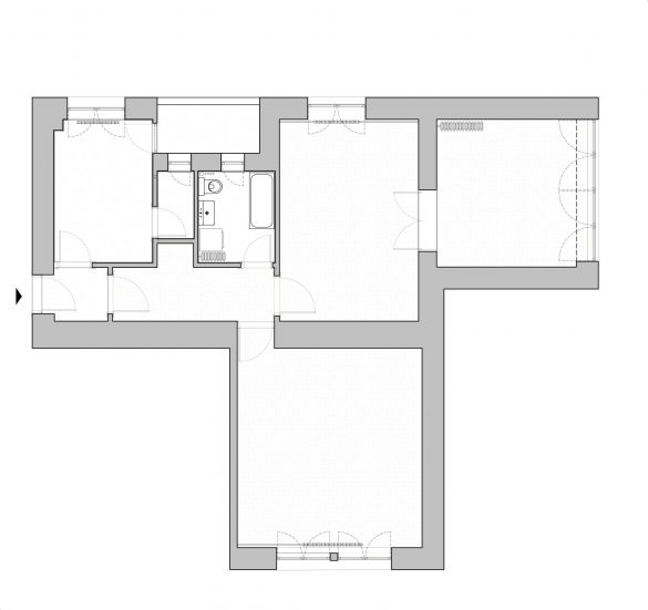
Koristeći masivni konstruktivni sistem objekta istovremeno kao ograničenje i potencijal koji usklađuje savremenu intervenciju sa arhitektonskim nasleđem objekta, organizacija prostora je projektom studija Gušić Architecture potpuno preoblikovana kroz dijagonalno otvaranje prostora, te kreiranje nove dinamike smene ambijenata.

Taktički raspoređena ogledala po stanu
Kao kontrast monumentalnosti i vizuelnoj težini objekta u kome se nalazi, stan je ambijentalno definisan propuštanjem i vođenjem svetlosti kroz prostorije, čemu je doprinela, između ostalog, trostrana orijentacija stana.
Svetlost igra ključnu ulogu u postizanju atmosfere unutar ovog prostora. Reflektovanje i propuštanje svetlosti postignuto je korišćenjem belih površina, linearno postavljenih spot svetala i taktički raspoređenih ogledala koja reflektuju delove kadrova ambijenata po dubini stana, i omogućavaju dalji prodor svetlosti kroz prostorije.
Kontrasti između belih i svetlo sivih površina, ogledala i toplih drvenih podova dodatno obogaćuju prostor, pružajući mu sofisticiran i harmoničan izgled.

Postepeni proces otkrivanja prostora stvara narativ koji se odvija kroz gotovo filmske sekvence na komunikaciji.
Glavni motiv stana – prostorna dijagonala je projektovana kao niz kadrova na glavnoj komunikaciji, sa koje se otvaraju funkcionalni mikroambijenti trpezarije, dnevne sobe i kuhinje.
Ovaj postepeni proces otkrivanja prostora stvara narativ koji se odvija kroz gotovo filmske sekvence na komunikaciji, kulminirajući horizontalnim kliznim prozorom celom dužinom dnevne sobe.
Igra planova, oblikovana kroz postavke nameštaja, materijale, osvetljenja i geometriju prostora, odvija se kroz nizove kadrova u kojima svaki element ima svoju ulogu, doprinoseći estetskom skladu i funkcionalnosti stana.
Ujednačena materijalizacija za skladnu celinu
U prožimanju prostora kuhinje i trpezarije, povezanost prostora dodatno je naglašena kontinuiranim potezom elemenata za odlaganje, koji se iz trpezarije u istom materijalu transformišu u kuhinjske elemente.
Ovaj projektantski pristup stvara osećaj celovitosti, dok se prostor jednom stranom, kroz koju prodire dijagonala, postepeno otvara dalje ka dnevnoj sobi i povezuje prostorije kroz pojedinačne elemente, naglašene svetlo sivom bojom.
Svaki element u ovom vizuelnom sistemu funkcioniše samostalno, dok njihova ujednačena materijalizacija stvara skladnu celinu.
Slobodnostojeći elementi dodatno doprinose jedinstvenom karakteru prostora.
Kao što se mikroambijenti otvaraju po sekvencama u prostoru, tako se i elementi za odlaganje raslojavaju duž stana i stvaraju gradaciju – od fragmentisanih polica do kuhinjskih masiva.
Slobodnostojeći elementi dodatno doprinose jedinstvenom karakteru prostora. Noćna zona je tretirana kao luksuzna mikrocelina definisana horizontalnim potezima i niskim težištem elemenata.
Garderober postaje ključan segment horizontalnog poteza koji počinje celinom radnog stola, čime se stvara organski tok između funkcija prostorije.

Različite visine plafona određene namenom prostorija dodaju dodatnu vrednost pri doživljaju prostora.
Dok ambijent noćne zone većinski odražava svetao ambijent dnevne zone i komunikacija, drvene površine kao nosioci toplih tonova, poput onih na podu i u pojedinačnim komadima nameštaja, javljaju se i u unutrašnjosti korpusa garderobera, čime predstavljaju uvođenje prirodnog materijala kao elementa iznenađenja u svetao enterijer.
Različite visine plafona određene namenom prostorija dodaju dodatnu vrednost pri doživljaju prostora, kojima se ističe trodimenzionalnost projektantskih poteza u ovom stanu.

Integrisani sistem podplafonskih klima
Osim efekta postignutog različitim visinama, koncept pročišćenosti u prostoru dodatno je ostvaren uvođenjem integrisanog sistema podplafonskih klima.
Ovaj stan, isprva određen monumentalnošću svog neposrednog konteksta, pažljivim projektantskim potezima komponovan je tako da zadovolji zahteve savremenog života i stvori prozračan prostor koji odiše mirom i toplinom.
Grafički prilozi
Foto-galerija
Tekst: Milja Mladenović




Pozdravljam ovaj koncept uređenja. Stan mi se veoma veoma dopada. Retko se vlasnici toliko bave osvetljenjem u svojim stanovima, a ono je od veoma velike važnosti. Osvetljenje može promeniti prostor u kome se živi i radi i na dobar i na loš način. U psolednje vreme me privlači magnetna šinska rasveta, nudi toliko toga.