Domaći studio Freya Architects potpisuju enterijer od 1.200 m2 za 115 zaposlenih, smešten u zgradi nekadašnje fabrike svile. Industrijsko nasleđe susreće se sa dizajnom okrenutom čoveku, sa akcentom na svetlost, prirodne teksture i radnu udobnost.
U istorijskoj zgradi od opeke, nekadašnjoj fabrici svile u Moskvi, realizovan je novi poslovni prostor kompanije Yandex.
Autori projekta, studio Freya Architects, osmislili su enterijer koji povezuje industrijsku arhitekturu i savremeni IT ambijent, uz jasno postavljen cilj da prostor bude funkcionalan, vizuelno rasterećen i prijatan za svakodnevni rad 115 zaposlenih.
“Ideja je bila da kreiramo jedinstven, funkcionalan i estetski čist prostor, ispunjen prirodnim teksturama i svetlošću, uz poštovanje istorijskog konteksta zgrade“, navode autori iz Freya Architects.
Okvir savremenog rada
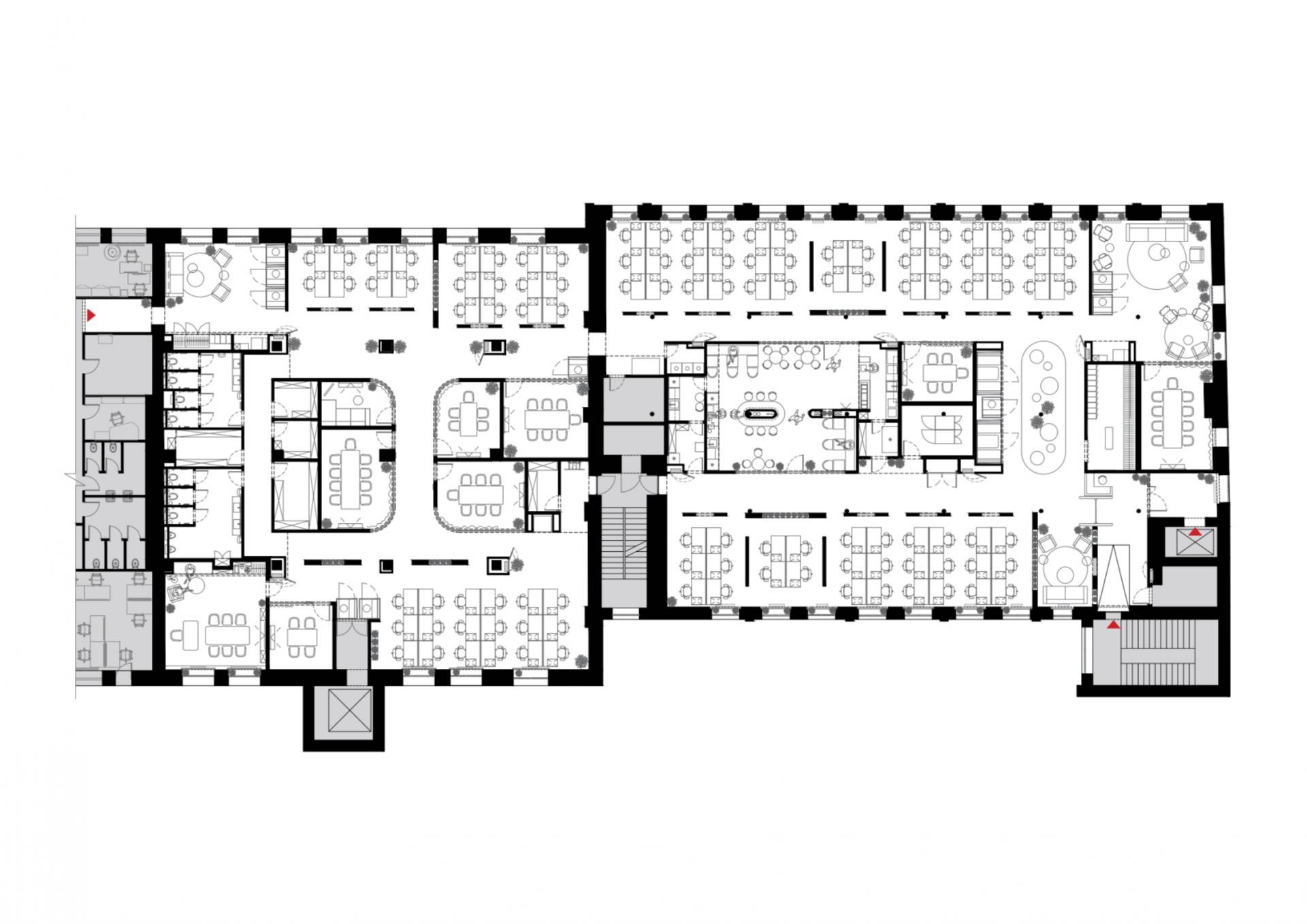
Prostor površine 1.200 m2 zadržava autentične elemente nekadašnje fabrike – restaurirane zidove od opeke i stubove od livenog gvožđa, koji danas daju karakter savremenom radnom okruženju.

Ovaj istorijski sloj dopunjen je otvorenim plafonima, vidljivim instalacijama i konstruktivnim elementima koji naglašavaju industrijsku estetiku.
Istovremeno, enterijer je omekšan čistim linijama, tekstilnim oblogama poda, toplim drvenim zidnim oblogama i nameštajem, kao i zakrivljenim staklenim površinama koje ublažavaju strogoću konstrukcije i podstiču osećaj protočnosti kroz prostor.
Prostor površine 1.200 m2 zadržava autentične elemente nekadašnje fabrike svile.
Prioritet svetlosti
Planiranje prostora zasnovano je na funkcionalnoj organizaciji otvorenih radnih zona uz prozore, kako bi se maksimalno iskoristilo prirodno svetlo.

U centralnom jezgru smeštene su sale za sastanke, tehničke prostorije i “coffee-point”, sa vitražnim staklenim pregradama koje zadržavaju vizuelnu lakoću.
“Otvorene radne zone kombinovali smo sa raznovrsnom tipologijom zatvorenih prostora – od velikih konferencijskih sala do kompaktnih telefonskih kabina za individualne pozive”, objašnjavaju iz studija.
Komforne “lounge” zone i prostori za neformalnu komunikaciju omogućavaju pauzu i razmenu ideja u opuštenijem ambijentu, čime se podstiče balans između koncentracije i saradnje.
Planiranje je zasnovano na organizaciji otvorenih radnih zona uz prozore, kako bi se iskoristilo prirodno svetlo.
Geometrijske pregrade
Glavni vizuelni akcenat enterijera čine geometrijske pregrade u nežnoj plavoj boji, sa kružnim otvorima.

“Pregrade stvaraju psihološke granice koje podržavaju koncentraciju bez utiska skučenosti. Kružni otvori omogućavaju vizuelni kontinuitet i unose dozu igre u celinu“, navode autori.
Ovaj element doprinosi identitetu prostora i smanjuje monotoniju tipičnu za velike kancelarijske zone.
Glavni vizuelni akcenat enterijera čine geometrijske pregrade u plavoj boji, sa kružnim otvorima.
Boje, materijali i akustika
Kolorit enterijera zasniva se na plavim, belim i sivim tonovima, uz dominantno prisustvo prirodnog drveta. Takva paleta prenosi stabilnost, a istovremeno povezuje različite funkcionalne zone u koherentnu celinu.

Staklene sale za sastanke naglašavaju transparentnost i kulturu otvorenosti, a zavese unutar prostorija omogućavaju fleksibilnost i privatnost kada je potrebna.
Posebna pažnja posvećena je akustici – pored zvučno-izolacionih pregrada i akustičnih plafonskih panela, korišćeni su zidni paneli od filca i dvostruko zastakljeni prozori kako bi se smanjio nivo buke.
“Cilj nam je bio da obezbedimo prijatno i tiho radno okruženje, koje podržava produktivnost i dugoročni komfor“, ističu iz Freya Architects.
Staklene sale za sastanke naglašavaju kulturu otvorenosti, a zavese omogućavaju privatnost kada je potrebna.
Zona opuštanja u kafeteriji
Kafeterija objedinjuje potpuno opremljen “coffee-point”, kafe zonu i udobna mesta za sedenje namenjena manjim grupama. Polukružne pregrade sa šankom i integrisanim policama sa biljkama dele prostor na intimnije celine.

U čitavom enterijeru prisutne su brojne biljke, integrisane u police i žardinjere. U kombinaciji sa velikim prozorima i obiljem prirodnog svetla, one unose prirodu u radni prostor, poboljšavaju kvalitet vazduha i doprinose opštem osećaju blagostanja.
U kombinaciji sa prozorima i prirodnim svetlom, biljke poboljšavaju kvalitet vazduha i doprinose osećaju blagostanja.
Rad u prostoru sa karakterom
Enterijer kompanije Yandex u Moskvi pokazuje kako istorijska industrijska arhitektura može da se transformiše u savremeno, humano radno okruženje.
Balans između otvorenosti i strukture, industrijskog nasleđa i toplih materijala, funkcionalnosti i estetike čini ovaj projekat primerom promišljenog kancelarijskog dizajna za novu generaciju IT kompanija.
Foto-galerija
Grafički prilozi
Faktografija
- naziv projekta: Yandex Office 02
- autor: Freya Architects
- lokacija: Moskva, Rusija
- površina: 1200 m2
- godina: 2025.
- fotografije: Maxim Loskutov



