U prostoru od 200 kvadrata u Beogradu oblikovan je “lounge & bar” koji funkcioniše kroz svetlo, zoniranje i jasan centralni motiv.
U novootvorenom prostoru Tyman na vodi u Beogradu, arhitekte iz MiVi Studio osmislile su enterijer koji se oslanja na atmosferu, ali ne gubi iz vida funkciju.
U razgovoru sa nama, Milica i Vid Savić otkrivaju kako su pristupili projektu, šta im je bio najveći izazov i koji elementi nose identitet ovog bara.
Prostor sa identitetom
Osnovna ideja projekta bila je da se stvori prostor koji ima prepoznatljiv karakter, ali ostaje lako čitljiv za korisnika.

Kako objašnjavaju autori: “Kroz dizajn smo želeli da ispoštujemo funkciju nargila i koktel bara, uz stvaranje ambijenta sa dozom mistike i izraženim noćnim karakterom, koji pored toga ostaje opušten i prijatan za duži boravak gostiju.”
Ovaj balans između izraženog vizuelnog identiteta i komfora ključan je za prostor koji funkcioniše i kao mesto izlaska, i kao mesto zadržavanja.
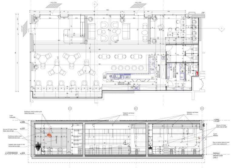
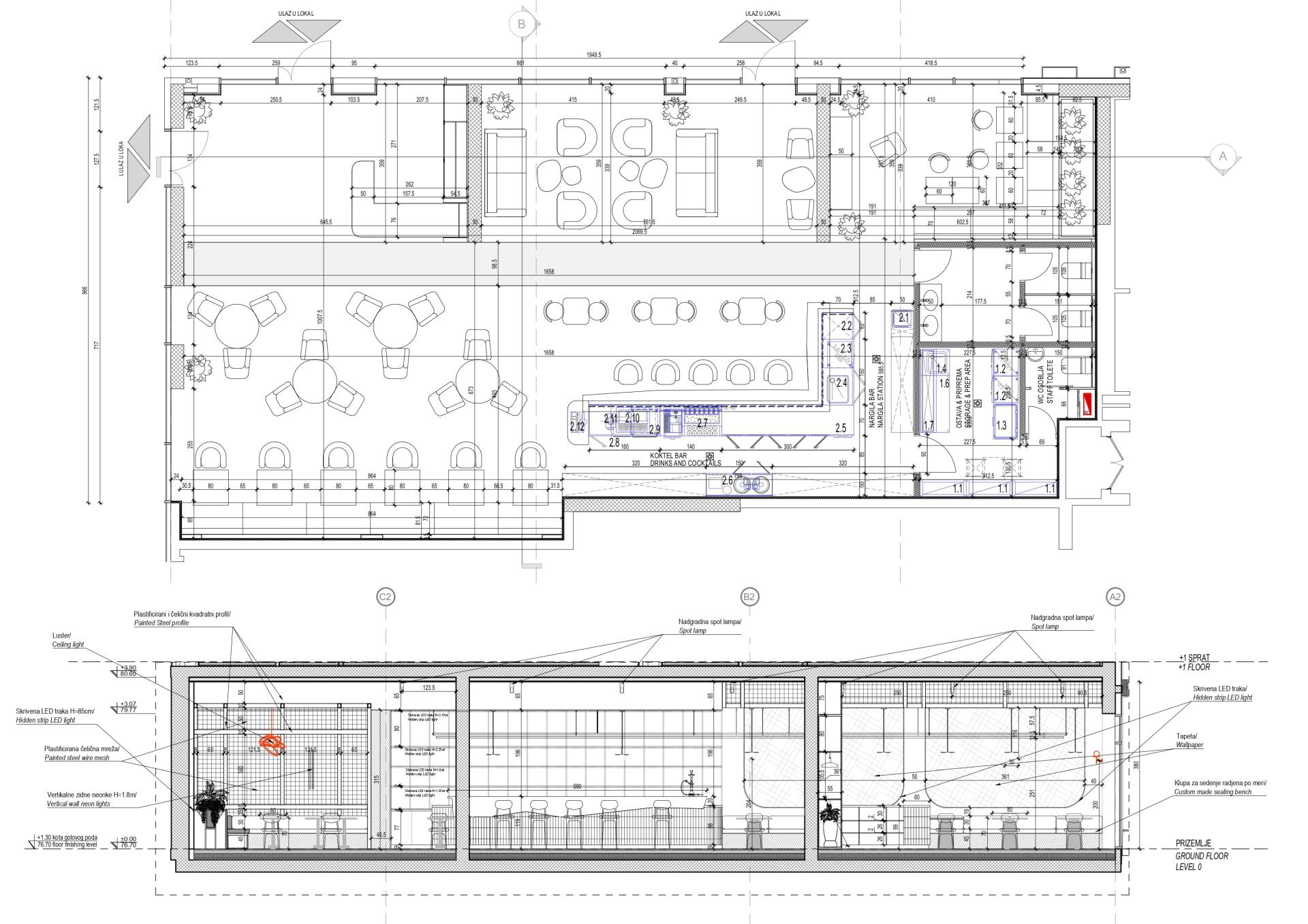
Organizacija prostora razvijena je oko šanka, koji postaje glavna tačka orijentacije.
Šank kao centralna tačka
Organizacija prostora razvijena je oko šanka, koji postaje glavna tačka orijentacije. Odatle se granaju različite zone – od otvorenijih, dinamičnih mesta do intimnijih segmenata namenjenih dužem boravku.

Zanimljivo je da su i postojeći konstruktivni elementi prostora, poput betonskih stubova, iskorišćeni kao alat za prirodno zoniranje.
Postojeći konstruktivni elementi prostora, poput betonskih stubova, iskorišćeni su kao alat za prirodno zoniranje.
Motiv svetlosne cevi
Najprepoznatljiviji element enterijera je fluidna svetlosna instalacija koja se proteže kroz prostor i povezuje njegove delove u jedinstvenu celinu.

“Ona unosi dinamiku u ambijent i funkcioniše kao vizuelni vodič koji povezuje različite zone bara u jedinstvenu”, otkrivaju autori.
Uz nju, važnu ulogu imaju i koloristički akcenti – bordo i zeleni tonovi koji razbijaju neutralnu osnovu i naglašavaju određene zone.
Najprepoznatljiviji element enterijera je fluidna svetlosna instalacija koja se proteže kroz prostor.
Materijali koji trpe upotrebu
S obzirom na tip prostora, izbor materijala morao je da odgovori i na estetiku, i na izdržljivost.

“U enterijeru je korišćena kombinacija materijala koji naglašavaju karakter prostora, ali i obezbeđuju trajnost u intenzivnoj ugostiteljskoj upotrebi. Podovi su izvedeni u keramici velikog formata, dok su zidovi delom obrađeni oblogama i tapetama, a delom klasičnim završnim obradama u boji“, objašnjavaju iz MiVi Studio.
Poseban sloj donose tapete koje su autorski dizajn studija, dok metalna mreža na plafonu daje prostoru suptilan industrijski ton.
S obzirom na tip prostora, izbor materijala morao je da odgovori i na estetiku, i na izdržljivost.
Atmosfera rasvete i akustike
U ovom enterijeru rasveta nije dodatak, već jedan od glavnih alata oblikovanja prostora.

“Celokupna rasveta projektovana je kao ‘custom-made’ rešenje specijalno za ovaj enterijer, pri čemu centralni svetlosni element – fluidna svetlosna cev – dodatno naglašava karakter prostora i povezuje različite zone bara“, dodaju autori.
Paralelno s tim, pažnja je posvećena i akustici – kroz zoniranje i zidne panele postignuta je kontrola zvuka koja doprinosi intimnijem doživljaju prostora.
Kroz zoniranje i zidne panele postignuta je kontrola zvuka koja doprinosi intimnijem doživljaju prostora.
Izazov intenzivne realizacije
Iako projekat deluje zaokruženo i jasno, njegov najzahtevniji deo bio je proces izvođenja.

“Najveći izazov u ovom projektu bila je sama realizacija. Projektovanja se danas gotovo i ne sećamo, jer je izvođenje bilo izuzetno intenzivno. Ceo prostor je morao biti završen u roku od tri meseca, što je podrazumevalo svakodnevnu koordinaciju velikog broja učesnika”, iskreno navode autori.
Tokom radova bilo je uključeno čak 23 različite ekipe, koje su morale da funkcionišu kao jedinstven sistem.
Tyman na vodi funkcioniše kao prostor koji ne zavisi samo od dizajna, već od načina na koji se u njemu boravi.
Prostor koji se pamti
Na kraju, cilj investitora bio je jasan – prostor koji će ostaviti utisak i biti lako prepoznatljiv.

“Klijent je želeo prostor koji će biti prepoznatljiv i atraktivan, posebno u večernjim satima. Kroz jasan koncept, dinamičnu rasvetu i jake akcente, enterijer je osmišljen tako da ostavlja snažan vizuelni utisak i lako se pamti”, dodaju.
Upravo ta atmosfera je ono na šta su autori najponosniji, a Tyman na vodi tako funkcioniše kao prostor koji ne zavisi samo od dizajna, već od načina na koji se u njemu boravi i koliko dugo gosti požele da ostanu.
Foto-galerija
Grafički prilog

Faktografija
- naziv projekta: Tyman na vodi Lounge & Bar
- autor: MiVi Studio
- lokacija: Savska 40, Beograd
- površina: 200 m2
- godina: 2025.
- fotografije: Relja Ivanić



