Želja klijenata, mladog para iz Njujorka, bila je da dobiju svoju oazu u kojoj će zaboraviti na teškoće svakodnevice i moći da se izoluju od užurbanog i bučnog gradskog života.
Oni su dali slobodne ruke za kreiranje dizajna enterijera firmi Reutov Design, obzirom da im se veoma dopao nestandardni pristup dizajnu arhitekte Reutov Dmitrya. Lajt motiv dizajna bio je lagan, nežan i pomalo plahovit izgled, kom su karakter dali terakota-ružičasti zidovi i plafoni.
Arhitektu su inspirisale prirodne boje, posebno one koje su karakteristične za Meksiko.
Kombinovanje ružičaste sa bogatim zelenim nijansama dovelo je do kreiranja veoma modernog i jedinstvenog enterijera, pišu arhitekte za ArchDaily.
Ovakav dizajn prostora neminovno asocira na južnjačke zemlje, a miris cveća i prisustvo biljaka u stanu stvara poseban ugođaj. Arhitekta Reutov je i istakao da su ga tokom dizajniranja inspirisale prirodne boje, posebno one koje su karakteristične za Meksiko.
Kaktusi u enterijeru
U enterijeru se mogu uočiti i tradicionalni arhitektonski elementi Meksika. Naime, arhitekta je, u želji da prenese osećaj južnjačkog sunca kombinovanog sa prirodnim bojama, uneo u prostor znatne količine kaktusa, kako u obliku pravih biljaka, tako tako i kroz printove. On ističe da je je kaktus kosmička biljka jedinstvenog dizajna, te je u njemu pronašao inspiraciju.
U prostor su unesene znatne količine kaktusa, kako u obliku pravih biljaka, tako tako i kroz printove.
Svaki od prisutnih kaktusa ima svoju formu i nijansu i svi zajedno postoje u harmoniji.
Kroz kreativnu interpretaciju kaktus se našao i u obliku dekorativnih stubova različitih pozicija, boja i oblika.
Zelene pregrade
Kreativna interpretacija kaktusa u formi zelenih stubastih pregrada.
Meksičko kupatilo
Ni kupatilo nije ostao uskraćeno za intenzivne boje i inovativan dizajn.
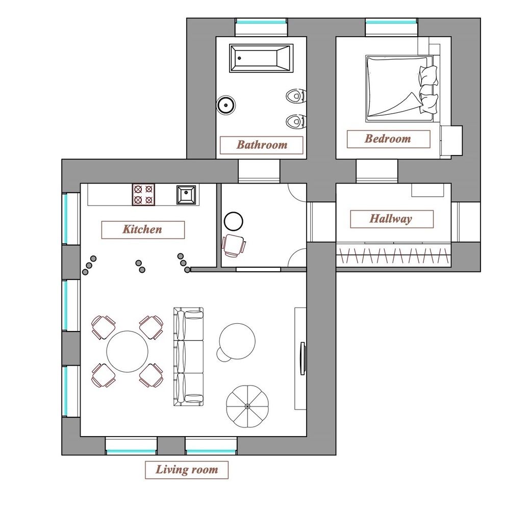
Osnova stana
Foto: Reutov Dmitry, Gerner Ekaterina


















[…] šarena, nepredvidiva tekstura ublažava monotoniju pastelnih površina i daje prostoru notu taktilne […]