Enterijer Aneksa u okviru Ložionice osmišljen je kao produžetak arhitektonskog koncepta, sa fokusom na svetlo, protočnost i biofilične elemente. Projekat potpisuje studio Mapa Architects, a prostor od gotovo 10.000 kvadrata donosi drugačije razumevanje savremenog radnog okruženja.
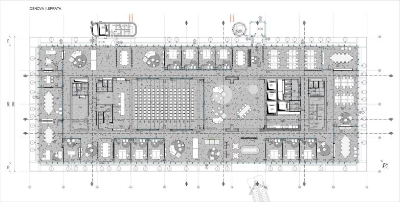
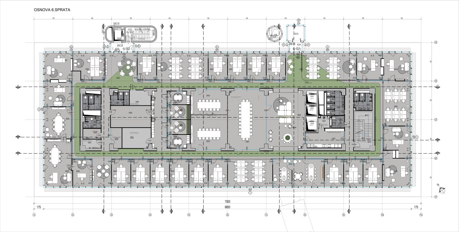
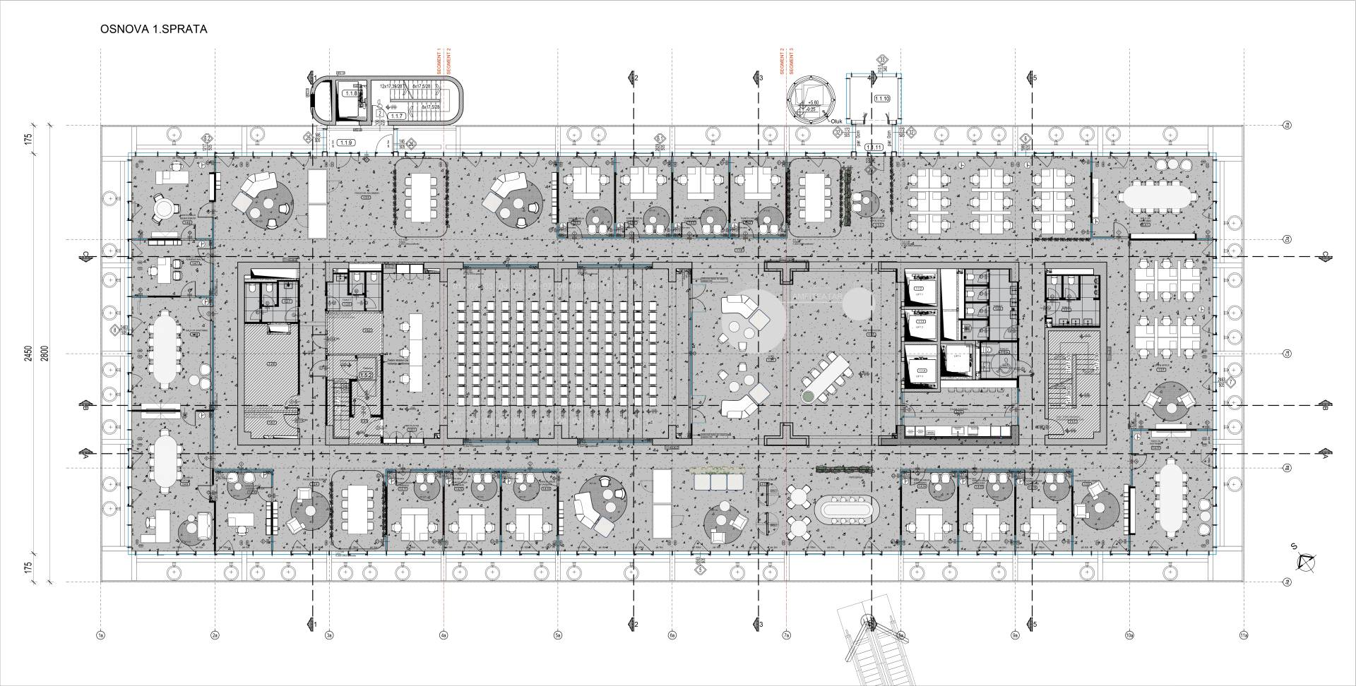
U okviru Multifunkcionalnog centra Ložionica u Beogradu, Aneks objekta dobio je enterijer koji dosledno prati i nadograđuje arhitekturu.
Autori iz studija Mapa Architects pristupili su projektu kroz pažljivo balansiranje zatečenih uslova i potreba savremenog poslovanja, sa ciljem da formiraju prostor koji je istovremeno funkcionalan, svetao i prijatan za boravak.
Nastavak arhitekture Ložionice
Projektom enterijera Aneksa uspostavljen je jasan kontinuitet sa osnovnim arhitektonskim konceptom objekta. Intervencije su svedene, ali precizne, usmerene na povećanje protočnosti prostora i kvaliteta ambijenta.

Kako objašnjava autor Predrag Milutinović, zadatak je bio kompleksan već u startu:
“Naš zadatak je bio da u okviru zatečenih ograničenja, formiranog skeleta objekta, ‘shell and core’ i osnovnih zahteva za komforom od strane klijenta, bez zadatih svih programskih očekivanja, formiramo ‘space planning’, dizajniramo enterijer i sinhronizujemo sve projekte do opremanja”, navodi.
Poseban fokus stavljen je na odnos između spoljašnjeg i unutrašnjeg prostora. Slojevita fasada dodatno je produbljena ka enterijeru odvajanjem punih zidova i uvođenjem staklenih površina, čime je omogućeno više dnevnog svetla, ali i jasnija vizura kroz prostor.
Intervencije su svedene, ali precizne, usmerene na povećanje protočnosti prostora i kvaliteta ambijenta.
Biofilični koncept
Jedan od ključnih izazova bio je rad sa prostorom koji u startu nije imao jasno definisanog korisnika za sve zone. Upravo zato akcenat je stavljen na univerzalni komfor i fleksibilnost.

“Osnovni izazov u konceptualnom smislu je formiran prostor bez jasnog korisnika za sve zone”, objašnjava autor, dodajući da je cilj bio da se uvede što više svetla i formira zeleni, biofilični ambijent.
Ozelenjena fasada se nastavlja u enterijer, gde se zelenila pojavljuju kao “ostrva” unutar prostora. Transparentni završeci zidova dodatno doprinose osećaju širine i osvetljenosti, dok se granice između zona vizuelno ublažavaju.
Ozelenjena fasada se nastavlja u enterijer, gde se zelenila pojavljuju kao “ostrva” unutar prostora.
Fleksibilan raspored za savremeni način rada
Iako je početni zahtev bio maksimalan broj kancelarija, autori su kroz organizaciju prostora pokušali da ublaže rigidnost takve matrice.

Uvođenjem relaks zona, “phone box” prostora i mesta za neformalnu komunikaciju, prostor dobija novu dinamiku. Funkcije se prepliću, a radni ambijent postaje fleksibilniji i prilagođen savremenim načinima rada.
Iako je zahtev bio maksimalan broj kancelarija, autori su kroz organizaciju pokušali da ublaže rigidnost takve matrice.
Sirovi materijali i taktilni slojevi
Materijalizacija prostora oslanja se na postojeći konstruktivni sistem objekta. Betonski skelet i tavanice ostavljeni su vidljivim, kao osnovni karakter prostora.

Ovaj sirovi sloj upotpunjen je toplijim, taktilnim materijalima – drvetom, tekstilom i podnim oblogama, koji prostoru daju potrebnu mekoću i balans.
Betonski skelet i tavanice ostavljeni su vidljivim, kao osnovni karakter prostora.
Kontrolisano osvetljenje i akustika
Velika količina dnevnog svetla predstavlja osnovni kvalitet prostora, dok se veštačko osvetljenje uvodi kontrolisano, kroz dimabilne sisteme.

“Objekat je potpuno prosvetljen sa maksimalnim uvozom dnevnog svetla, dok se veštačko svetlo kontrolisano uključuje sa dimabilnim kontrolerima”, objašnjava Milutinović.
Zbog prisustva tvrdih materijala poput betona, stakla i aluminijuma, akustika je dodatno tretirana. Pored nameštaja i tekstila, uvedene su i profesionalne akustične obloge, posebno u zonama plafona i pregradnih zidova.
Velika količina dnevnog svetla predstavlja osnovni kvalitet prostora, dok se veštačko osvetljenje uvodi kontrolisano.
Boja i materijali kao nosioci ambijenta
Estetika prostora nije zasnovana na dekoraciji, već na promišljenoj upotrebi boje, svetla i materijala koji jasno definišu zone i funkcije.

“Boja i materijali nisu samo dekoracija radi scene, već učesnik u karakteru prostora i formiranju ambijenta“, objašnjava autor.
Različiti departmani diferencirani su bojom, dok nameštaj i zavese dodatno pomažu u organizaciji prostora i njegovom lakšem korišćenju.
Različiti departmani diferencirani su bojom, dok nameštaj i zavese pomažu u organizaciji prostora i lakšem korišćenju.
Detalji koji unose dinamiku
Iako je osnovna struktura prostora geometrijski jasna i racionalna, dodatna mekoća postignuta je kroz tekstilne elemente i akustične materijale.

Posebnu ulogu imaju draperije koje se pomeraju po šinama i menjaju ambijent u zavisnosti od potrebe.
“Draperije su pomogle lakšem formiranju fluidnih mekih prelaza, koji su postali stalna promena, ne dosadna postavka”, objašnjavaju autori.
Uz to, difuzno dnevno svetlo i integrisano zelenilo dodatno doprinose osećaju prijatnosti i opuštenosti u prostoru.
Posebnu ulogu imaju draperije koje se pomeraju po šinama i menjaju ambijent u zavisnosti od potrebe.
Enterijer kao prirodan nastavak prostora
Jedan od aspekata na koji su autori posebno ponosni jeste usklađenost enterijera sa arhitekturom objekta.

“Enterijer je prirodni nastavak u ređanju utisaka i očekivanih sklapanja ambijenata od ulaza pa nadalje”, navode iz studija Mapa Architects.
Upravo taj kontinuitet i pažljivo građen odnos između svetla, materijala i funkcije rezultirali su prostorom koji je istovremeno racionalan i prijatan, jasan u organizaciji, ali raznovrstan u doživljaju.
Foto-galerija
Grafički prilozi
Faktografija
- naziv projekta: Projekat Enterijera Ofis objekta Aneks, u okviru Multifunkcionalnog centra Ložionica
- autor: Mapa Architects | Predrag Milutinović dipl.ing.arh, Olivera Stanković M.Arch.
- lokacija: Beograd
- površina: 9.900 m2
- godina: 2025.
- fotografije: Miloš Martinović
Ako vas zanima kako izgleda enterijer centralnog dela ovog kompleksa, detaljno smo ga već predstavili u posebnom tekstu.
U njemu otkrivamo kako je oblikovan prostor Ložionice kao multifunkcionalnog centra, uz fokus na industrijsko nasleđe, savremene intervencije i način na koji je ovaj objekat ponovo uključen u život grada.
Enterijer Ložionice u Beogradu: Spoj istorije, materijala i nove energije prostora



