U ovom beogradskom stanu, autentična konstrukcija i industrijski materijali ostali su vidljivi i postali ključni deo identiteta prostora, dok su topli drveni elementi i fleksibilna organizacija prilagođeni savremenom načinu života.
Zatečeno stanje prostora često je polazna tačka koja definiše čitav projekat. U ovom slučaju, čista betonska konstrukcija nije bila nešto što treba sakriti, već element oko kojeg je razvijen kompletan koncept enterijera.
Studio mycode pristupio je projektu sa idejom da se očuva autentičnost prostora, ali i da se on prilagodi svakodnevnim potrebama savremenog korisnika, kroz jasnu organizaciju, izbor materijala i diskretnu integraciju tehnologije.
Zadržavanje autentičnosti
Osnovna ideja projekta na Vračaru proistekla je iz odnosa prema postojećoj arhitekturi i njenim sirovim karakteristikama.
Kako ističu arhitekte, „osnovni koncept projekta proistekao je iz namere da se zadrži autentičnost zatečenog prostora, uz njegovo prilagođavanje savremenom i funkcionalnom načinu života“.

Betonska konstrukcija, koja je u startu dominirala prostorom, postala je nosilac identiteta enterijera. „Početno stanje postalo je ključni arhitektonski element koji definiše identitet enterijera“, navode iz studija, uz dodatak da je inspiracija pronađena u spoju industrijskih materijala i toplijih, prirodnih tekstura.
Početno stanje postalo je ključni arhitektonski element koji definiše identitet enterijera, navode autori.
Jasne zone unutar otvorenog plana
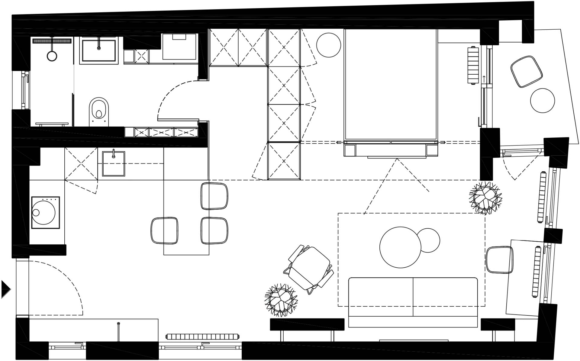
Jedan od glavnih izazova bio je organizacija prostora ograničene kvadrature, bez narušavanja njegove otvorenosti.
„Jedan od najznačajnijih izazova bio je organizovati jasno definisane, a istovremeno fleksibilne funkcionalne celine unutar ograničene površine“, objašnjavaju arhitekte.

Poseban fokus bio je na razdvajanju dnevne i noćne zone, ali bez klasičnih pregrada. Rešenje je pronađeno u kliznim vratima integrisanim u TV policu, čime je omogućeno da se prostor po potrebi otvara ili zatvara.
„Tako je postignut balans između otvorenog, svetlog dnevnog ambijenta i intimne, mirne noćne zone“, navode autori govoreći o efektima ove odluke.
Jedan od glavnih izazova bio je organizacija prostora ograničene kvadrature, bez narušavanja njegove otvorenosti.
Raspored oblikovan navikama
Organizacija prostora nije bila vođena estetikom kao ciljem samim po sebi, već analizom načina korišćenja. „Raspored prostora definisan je detaljnom analizom svakodnevnih navika korisnika“, navode iz studija mycode.

Težnja ka jednostavnim i jasnim rešenjima rezultirala je enterijerom koji ostaje prozračan i lako prilagodljiv, dok su ugradni elementi i fleksibilni prelazi između zona omogućili maksimalnu funkcionalnost bez vizuelnog opterećenja.
Raspored prostora definisan je detaljnom analizom svakodnevnih navika korisnika.
Kad materijali grade karakter
Materijalizacija enterijera jasno prati početni koncept. „Dizajn enterijera balansira prirodne i industrijske materijale, stvarajući prostor koji je topao, ali i arhitektonski jasan„, ističu arhitekte.

Beton i konstruktivni elementi definišu industrijski karakter, dok cigla i drvo unose teksturu i toplinu. Metalni detalji i linijska rasveta dodatno naglašavaju savremeni izraz, dok su svi tehnološki sistemi pažljivo integrisani kako ne bi narušili vizuelnu celinu prostora.
Tehnološki sistemi pažljivo su integrisani kako ne bi narušili vizuelnu celinu prostora.
Ista logika akustike i svetla
Akustika i osvetljenje tretirani su kao ravnopravni elementi projekta. „Akustici i osvetljenju pristupili smo jednako pažljivo kao i prostornoj organizaciji“, objašnjavaju iz studija.

Ugradni elementi i raspored masa doprineli su prijatnoj zvučnoj atmosferi, dok fleksibilna šinska rasveta omogućava prilagođavanje svetlosnog ambijenta različitim zonama.
Ravnoteža je postignuta kombinacijom pažljivog planiranja i racionalne organizacije prostora.
Sinergija estetike i funkcije
U ovom projektu, estetika i funkcionalnost razvijane su istovremeno. „Balans je postignut kombinacijom pažljivog planiranja i racionalne organizacije prostora, u kojem se svaki element istovremeno čita kao sastavni deo ambijenta i kao praktičan segment svakodnevnog korišćenja“, navode arhitekte.

Sirovi materijali postavljaju snažan estetski okvir, dok minimalistički nameštaj, ugradni elementi i skriveni sistemi odlaganja omogućavaju visok nivo praktičnosti, bez suvišnih vizuelnih akcenata.
Balans industrijskog karaktera, prirodnih tonova i odabranih materijala čine ovaj stan primerom promišljenog dizajna.
Odgovor na potrebe
Jedan od ključnih zahteva klijenta bio je prostor koji može da se prilagodi različitim scenarijima korišćenja. „Ključni zahtev – otvorenost prostora uz mogućnost jasne podele zona – rešen je integracijom kliznih vrata skrivenih u TV policu„, ističu iz studija mycode.

Ovakav pristup omogućava jednostavno upravljanje privatnošću, uz očuvanje kontinuiteta prostora i njegove osnovne prostorne logike.
U cilju ravnoteže
Na kraju, iz studija mycode ističu da su posebno ponosni na postignutu ravnotežu unutar ograničene kvadrature. „Uspeli smo da formiramo jasno definisane, ali fleksibilne zone koje omogućavaju različite načine korišćenja, a da prostor ostane vizuelno lagan i prijatan„, zaključuju.

Balans industrijskog karaktera, prirodnih tonova breze i pažljivo odabranih materijala, uz diskretnu integraciju ugradnih elemenata i rasvete, čini ovaj stan primerom promišljenog dizajna u kojem forma i funkcija postoje kao jedinstvena celina.
Foto-galerija
Grafički prilog

Faktografija
- naziv projekta: Apartman Chernishevski 5
- autor: mycode
- lokacija: Vračar, Beograd
- površina: 52 m2
- godina: 2023.
- fotografije: Miloš Martinović



