Jedna renovirana koliba dobila je potpuno novo potkrovlje koje spaja privatnost, tamne tonove i pažljivo oblikovano svetlo. Projekat studija Plus One Architects pokazuje kako tradicionalna arhitektura može da se nadogradi savremenim, smirenim enterijerom.
Na blago zatalasanom pejzažu češke regije Visočina nalazi se porodična koliba čija istorija seže do početka 19. veka.
Nakon što su vlasnici godinama obnavljali njen eksterijer, usledila je i transformacija enterijera – najpre prizemlja, a zatim i potkrovlja koje danas dobija sasvim novi identitet.
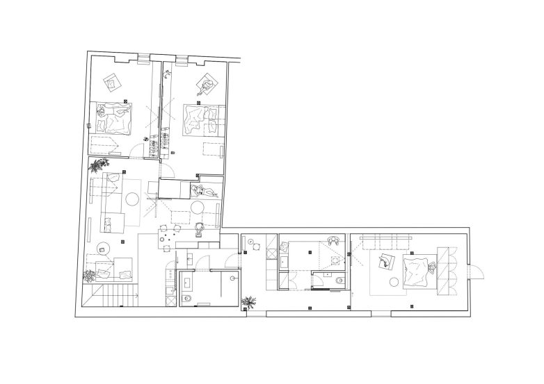
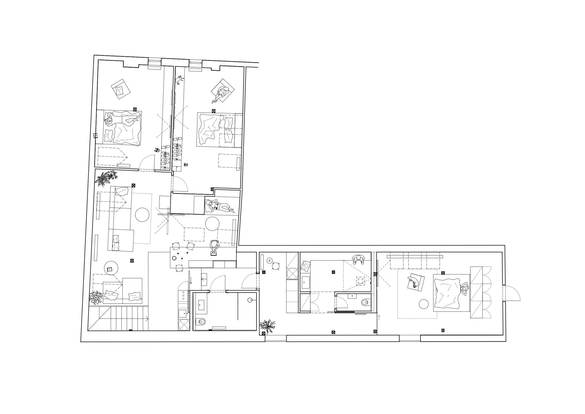
Odvojen svet potkrovlja
Zadatak za arhitekte bio je da oblikuju prostor za boravak šire porodice i gostiju, uz dovoljno privatnosti i osećaja povučenosti u odnosu na okruženje.

Novo potkrovlje referiše na prizemlje tek kroz pojedine materijale, poput punog drveta i zadržanog kamenog zida, ali u celini gradi sopstveni karakter.
U privatnom delu dominiraju tamne nijanse i sirovi materijali, što je neuobičajen izbor za tradicionalni enterijer češke kolibe.
Ipak, upravo takav pristup omogućio je stvaranje atmosfere koja smanjuje vizuelne distrakcije i podstiče odmor.
“Ovde mrak nije efekat, već alat za postizanje mira“, objašnjavaju autori projekta iz studija Plus One Architects.
Potkrovlje referiše na prizemlje tek kroz pojedine materijale, poput punog drveta i zadržanog kamenog zida.
Nova dinamika svetla
Jedan od ključnih zahvata odnosio se na konstrukciju krova, čime je proširena korisna površina potkrovlja.

Pod je podignut kako bi se ujednačile visine, što je zahtevalo i projektovanje novog stepeništa.
“Izmene u potkrovlju omogućile su nam da u postojeće otvore u kamenom zidu ubacimo nove prozore i dovedemo dnevno svetlo dublje u prostor. Svetlo ulazi indirektnije, što dodatno naglašava smirenu atmosferu”, objašnjavaju autori.
Zbog podignutog poda, prozori su delimično uvučeni u odnosu na enterijer, pa se iznutra vide samo njihovi gornji delovi.
Jedan od ključnih zahvata odnosio se na konstrukciju krova, čime je proširena korisna površina potkrovlja.
Dve zone, dve atmosfere
Enterijer je jasno podeljen na dve celine – i prostorno, i ambijentalno. Privatna zona obuhvata spavaću sobu i garderober u tamnim tonovima, dok su gostinske sobe svetlije i svedenije, oblikovane po uzoru na hotelski smeštaj.

Između njih se nalazi centralni prostor namenjen druženju, sa šankom, mestom za sedenje i radnim kutkom. U blizini stepeništa smešteni su zajedničko kupatilo i toalet.
Privatna zona obuhvata spavaću sobu i garderober u tamnim tonovima, dok su gostinske sobe svetlije i svedenije.
Granit, kamen i zanatski detalji
Jedan od najupečatljivijih materijala u enterijeru je crni granit, koji se koristi u kupatilu, ali i kao šank koji se nastavlja u radnu površinu ispod kosog krova. Originalni kameni zid ostaje vidljiv i postaje važan deo identiteta prostora.

Posebna pažnja posvećena je detaljima – klizna vrata uz stepenište prate neravnu liniju kamenog zida, dok je u centralnom prostoru postavljen čelični stub sa rotirajućim televizorom, izrađenim po zahtevu investitora.
Atmosferu dodatno oblikuje indirektno osvetljenje – kombinacija lampi, reflektovanog svetla i integrisanih LED traka koje omogućavaju prilagođavanje intenziteta i karaktera ambijenta.
Posebna pažnja posvećena je detaljima, poput kliznih vrata uz stepenište koja prate neravnu liniju kamenog zida.
Prostor za zajedništvo
Velika prednost projekta bila je duboka povezanost vlasnika sa kućom, koja je pomogla u definisanju obima i tempa radova.

“Od početka su znali da ne žele da žure. Bilo im je važno da renoviranju pristupe promišljeno i kvalitetno, čak i ako to traje duže”, kažu autori projekta.
Renoviranje nije donelo radikalnu promenu, već je postalo još jedan sloj u razvoju kuće.
Danas potkrovlje funkcioniše kao mesto okupljanja, ali i kao prostor za mir – utočište u kojem materijali, svetlo i tama zajedno grade atmosferu odmora i koncentracije.
Foto-galerija
Grafički prilog

Faktografija
- naziv projekta: Cottage in Vysočina
- autor: Plus One Architects
- lokacija: Visočina, Češka
- površina: 144 m2
- godina: 2025.
- fotografije: Radek Šrettr Úlehla



