Skriven iza velikih staklenih portala enterijer kabina je jednostavan i sveden, sa naglaskom na drvenim detaljima od starih hrastovih talpi, ali i umetničkim delima iz kolekcije vlasnika.
Izgrađeni 2023. godine u zoni Nacionalnog parka Tara, ova dva bungalova upečatljive arhitekture i dizajna, ukupne površine od 150 kvadratnih metara, odraz čistog prirodnog okruženja u kom se nalaze nose i u svom zajedničkom imenu – Tara Cabins Pure Nature.
Autor idejnog rešenja je dipl. arh. Stevan Đurić, glavni projekat izradio je studio ”Croft” iz Beograda na čelu sa dipl. arh. Stevanom Radomirovićem, dok je, s obzirom na delikatnost lokacije, proces dobijanja građevinske dozvole trajao čitave dve i po godine.

Savršen pogled i prirodna scenografija
Kako je za portal Gradnja.rs objasnio Marko Đurić, istoričar umetnosti i vlasnik Tara Cabins Pure Nature, ljubav prema prirodi i povezivanje sa njom bio je osnovni je motiv za nastanak ovakvog ambijenta.
“Porodično poreklo sa Tare je uslovilo odabir lokacije i nekoliko godina trajala je potraga za savršenim pogledom na jezero Zaovine i odgovarajućom prirodnom scenografijom” – naveo je Đurić.
Ideja je bila da jednostavna, kompaktna forma što manje narušava i menja prirodni ambijent u kom se nalazi.

Objekti su zamišljeni da budu jedinstven spoj prirodnog i modernog.
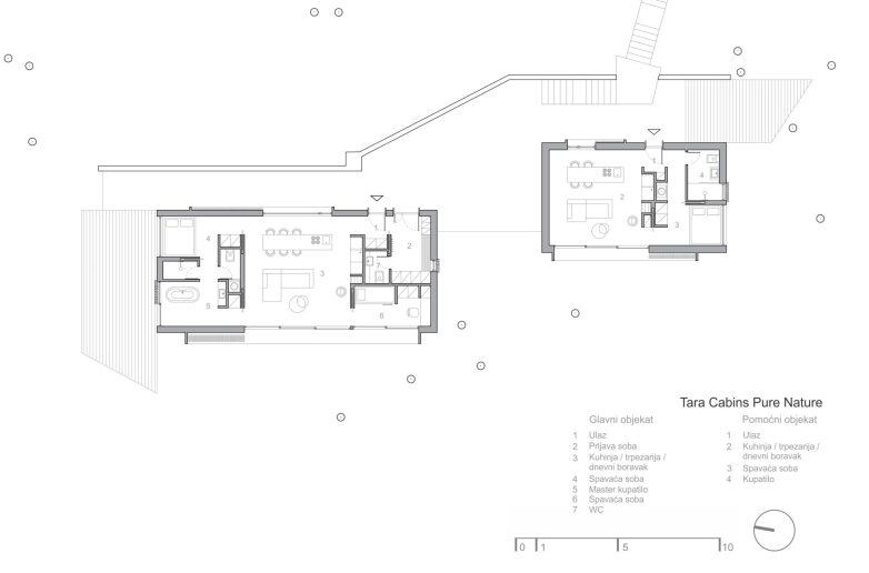
Arhitektonska zamisao bila je da jedan objekat bude glavni, a drugi pomoćni, te tako na parceli danas ponosno stoje Master cabin with lake view i Art collectors landscape cabin.
„Glavna vodilja je bila ostvarenje kontakta između čoveka i prirode, minimalizacija dekorativnih elemenata i u eksterijeru i enterijeru, kao i praktičnost i maksimalno iskorišćenje prostora” – rekao je Đurić i dodao:
„Ulogu luksuza preuzima sama pozicija i vizuelnost prostora, način na koji se planira koristiti i specifična scenografija planine Tare sa prirodnim okruženjem i pogledom na jezero Zaovine, uz maksimalnu privatnost”.

Zbog nepristupačnog terena, postavka staklenih portala je bila je jedan od većih izazova.
Objekti su zamišljeni da budu jedinstven spoj prirodnog i modernog i da na savremen način kombinuju tradicionalnu arhitekturu sa modernom, uz primenu savremenih detalja i principa.
Upečatljivost bungalovima posebno daju veliki stakleni portali. Fasadna stolarija je troslojna, aluminijumska, proizvođača Elvial i korišćen je podizno-klizni sistem 6800.
„Zbog nepristupačnog terena, postavka staklenih portala je bila jejedan od većih izazova. Izvođači su morali da prave pomoćne alate za spuštanje staklenih portala i sve je moralo ručno da se dostavi na postojeću lokaciju“, kaže sagovornik Gradnje.

Prostorija koju zovemo „prljava“ soba služi kao filter za korišćenje objekta kada se, recimo, vraćate „prljavi“ iz planine.
Po pitanju sadržaja, projekat je zamišljen kao sklop glavnog i pomoćnog objekta, tako da je glavni objekat dobio dominantniju poziciju i organizaciju prostora.
Na samom ulazu u glavni objekat, skreće opet pažnju Đurić, daju se primetiti određene „nelogičnosti“ – u vidu duplih ulaznih vrata.
„Naime, glavni ulaz direktno vas uvodi u hodnik pa u dnevni prostor, dok su druga vrata na samom ulazu proširena i recimo da su tehnička, jer vas uvode u prostor kroz prostoriju koja ima određenu ulogu utility prostora. Mi tu prostoriju zovemo ’prljava’ soba jer služi kao filter za koriščenje objekta kada se, recimo, vraćate ’prljavi’ iz planine“, objašnjava vlasnik.
Ova prostorija ima posebno kupatilo sa WC-om i vrlo je koristan prostor za odlaganje alata i raznih pribora (lov, pecanje) ili pomoćnih stvari poput bicikla ili opreme za planinarenje, a tu se nalaze i razne vrste korpi i sušača za lekovito bilje, gljive itd.

Betonska kosa ploča kao tavanica
Dnevni prostor ujedno je najautentičniji prostor kompletnog projekta i upija prirodnu scenografiju jezera Zaovine, dalje sa pogledom na predele Vežanje i vrha Janjač.
„Uz punu visinu, gde je ostavljena da se vidi betonska kosa ploča kao tavanica, sa velikim staklenim portalima, ovaj prostor dominira, i u njemu je predviđeno da vlasnici i korisnici pronađu mir i ostvare kontakt čovek – priroda, koji je i bio vodilja u projektovanju svih ostalih arhitektonskih celina“, naveo je Đurić.

Ideja za drugi prostor za spavanje došla je od organizacije spavanja kao u planinarskim domovima.
Vidljive su tranzitne putanje kao i kružne komunikacije u arhitekturi i organizaciji prostora, odnosno mogućnosti da iz dnevnog prostora odete u prostor namenjen za spavanje pa dalje u kupatilo, iz kupatila na terasu, i obrnuto.
„Prostori namenjeni za spavanje su takođe specifični, to su određene vrste niša u prostoru, obložene drvetom, gde je umetnut krevet, dok je sa spoljne strane kompletan stakleni zid koji pruža nestvaran pogled na noćni pejzaž. I ovaj specifičan doživljaj pruža savršene noći kao i buđenja i početke dana kroz ostvareni spoj čovek – priroda“, istakao je sagovornik Gradnje.

Tri prostora Master kupatila
Drugi prostor za spavanje je takođe niša, gde je implementiran krevet na tri sprata. Ideja je došla od organizacije spavanja kao u planinarskim domovima, gde je iskorišćenost prostora maksimalna. U toj sobi se nalazi i radni deo sa bibliotekom gde se čovek može povući u trenucima poslovnih obaveza.
„Glavno, Master kupatilo je zamišljeno kroz upotrebu tri prostora koje čine jednu celinu i to: posebno ozidana, zasebna i velika tuš-kabina, zaseban WC i takođe, zaseban prostor sa samostojećom kadom iz koje se kroz stakleni zid ostvaruje, opet, konekcija čovek – priroda, a ujedno je i tranzit ka terasi i spoljašnjosti“, naveo je vlasnik za Gradnju.

Manji bungalov je više okružen šumom i oko njega dominira šumski pejzaž.
Pomoćni objekat je manjih dimenzija ali isto autentičnog ambijenta, sa svim arhitektonskim detaljima koji su pomenuti i primenjivani na glavnom objektu.
Okruženje je za nijansu drugačije, ovaj bungalov je više okružen šumom i oko njega dominira šumski pejzaž.

Stare hrastove talpe preuzete su i restaurirane sa preko vek stare kolibe.
Dizajn prostora su radili sami vlasnici objekta koji su oboje po profesiji istoričari umetnosti uz pomoć ljudi koji su učestvovali u nastajanju celog kompleksa od samog početka.
Enterijer je jednostavan i sveden, sa naglaskom na drvenim detaljima izrađenim od starih hrastovih talpi, preuzetih i restauriranih sa kolibe stare preko 100 godina.
„Obradu starog drveta je uradila firma Arbor iz Železnika, uz maksimalno iskorišćenje i zadržavanje estetskih karakteristika radi dobijanja željenog efekta, koja je i najzaslužnija za ovako autentičan proizvod“, ističe sagovornik portala Gradnja.
U enterijeru su, dodaje, pored drvenih, vidljivi i metalni elementi, izrađeni prema posebnom zahtevu investitora.

Umetnička dela za poseban pečat
Kao nešto što daje poseban pečat autentičnom prostoru, Đurić na kraju ističe i jedinstvenu kolekciju umetničkih dela koja se nalaze u bungalovima.
Naime, vlasnici koji su oboje istoričari umetnosti su u kabinama izložili deo sopstvene kolekcije od 12 umetničkih slika, autorke dr Jelene Šalinić Terzić, redovnog profesora na Filološko-umetničkom fakultetu u Kragujevcu, dobivši na taj način za njih poseban i ličnom stilu i pasiji prilagođen prostor.




