Enterijer salona Frizzolino na Novom Beogradu osmišljen je kao prostor u kojem se šišanje pretvara u igru. Razigrana paleta i meke forme prave ambijent koji je danas retkost na domaćoj sceni.
U vremenu kada enterijeri sve češće idu ka neutralnim tonovima i smirenim paletama, jedan dečji frizerski salon u Beogradu ide potpuno suprotnim putem.
Frizzolino je prostor koji otvoreno slavi boju, igru i dečju percepciju sveta – bez zadrške i bez potrebe da se uklopi u aktuelne trendove.
Projekat potpisuje dizajnerka enterijera Jovana Milojević, koja je prostor osmislila iz perspektive deteta, sa jasnim ciljem da šišanje više ne bude stres, već iskustvo kojem se raduje.
Enterijer koji prati logiku deteta
Koncept prostora zasniva se na ideji sigurnosti i opuštanja kroz poznate i bliske vizuelne kodove. Prostor je intuitivan, čitljiv i prilagođen načinu na koji deca doživljavaju okruženje.

“Koncept je usmeren na korisnika – dete. Cilj je da se kroz ambijent postigne opuštanje i stvori pozitivno iskustvo, koje će šišanje transformisati iz potencijalno stresne situacije u prijatan ritual“, objašnjava autorka projekta.
Zaobljene linije, talasasti oblici i grafički elementi stvaraju atmosferu koja je razigrana, ali u kojoj je sve kontrolisano i jasno organizovano.
Koncept prostora zasniva se na ideji sigurnosti i opuštanja kroz poznate i bliske vizuelne kodove.
Boje kao glavni alat
Najupadljiviji element ovog enterijera je koloristička paleta. Umesto sigurnih, neutralnih tonova, prostor je definisan kombinacijom žute, plave, roze i zelene u svom punom intenzitetu.

Ovakav pristup retko se viđa u savremenim enterijerima u Srbiji, gde se boja često koristi oprezno ili svedeno. Ovde ona postaje osnovni alat komunikacije sa korisnikom.
Boje ne služe samo estetici, već i orijentaciji i doživljaju prostora – od ulaza, preko čekaonice, do radnog dela.
Umesto sigurnih, neutralnih tonova, prostor je definisan kombinacijom žute, plave, roze i zelene u svom punom intenzitetu.
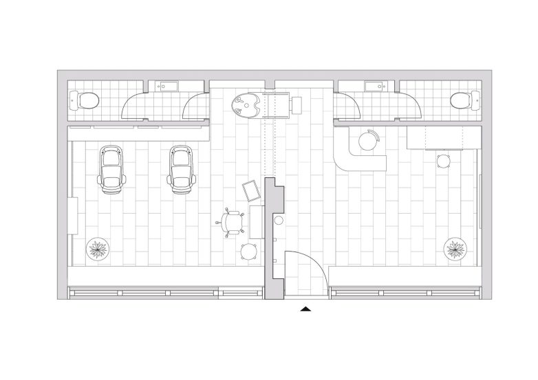
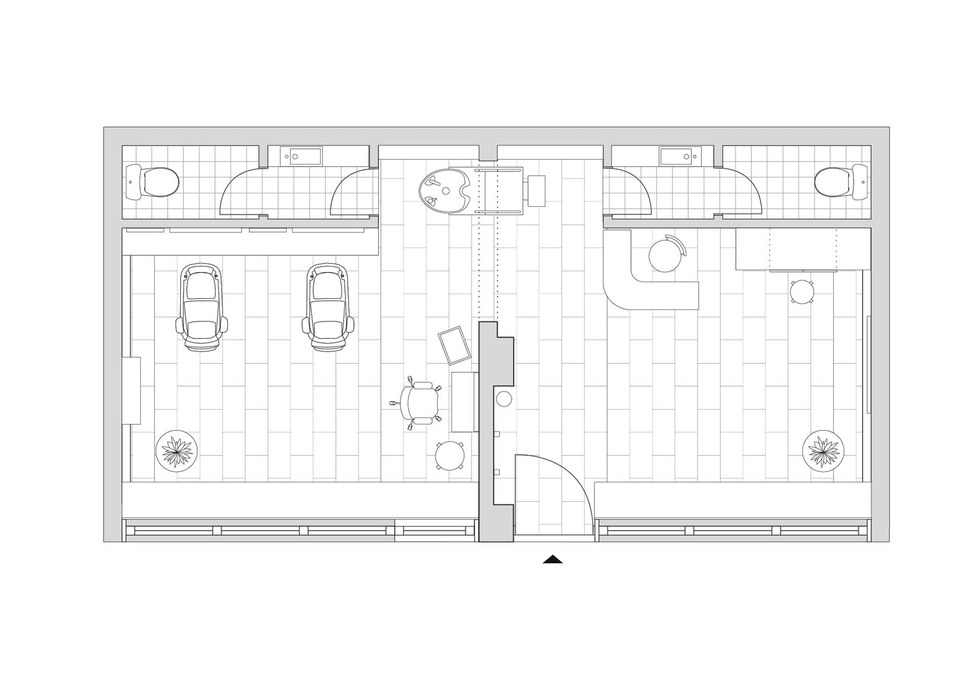
Jasna podela prostora
Dispozicija je organizovana kroz dve osnovne zone – prijemnu i radnu. Kretanje kroz prostor je linearno i lako razumljivo, što je posebno važno kada su korisnici deca.

“Organizacija prostora omogućava linearan i nedvosmislen tok kretanja, uz gradaciju ambijenta – od razigrane i aktivne zone ka smirenijem prostoru koji usmerava korisnika na osnovnu funkciju”, navodi autorka.
Ova postepena tranzicija pomaže deci da se prirodno prilagode situaciji – od igre do samog šišanja.
Kretanje kroz prostor je linearno i lako razumljivo, što je posebno važno kada su korisnici deca.
Detalji prave razliku
Prostor je pažljivo opremljen elementima koji imaju i funkciju i ulogu u stvaranju atmosfere. Tematske stolice u obliku automobila uvode igru u sam proces šišanja, dok je u čekaonici formiran poseban segment za igru i boravak.

Kontinuirana klupa uz prozor, sa talasastom linijom i jastucima u obliku cvetova, povezuje prostor i uvodi toplinu kroz prirodnu teksturu drveta.
“Kontinuirana klupa razvijena celom dužinom otvora stvara dinamiku, ali i obezbeđuje dovoljan kapacitet za sedenje, dok svetla nijansa drveta balansira intenzitet boja”, objašnjava Milojević.
Materijali su birani sa jasnim ciljem da budu jednostavni za održavanje, što je ključna stavka u prostoru namenjenom deci.
Materijali su birani sa ciljem da budu jednostavni za održavanje, što je ključna stavka u prostoru namenjenom deci.
Osećaj kao kod kuće
Frizzolino pokazuje da dečji enterijer ne mora da bude kompromis između estetike i funkcije. Naprotiv, upravo kroz boju, igru i jasno osmišljene zone, prostor postaje mesto u kojem se deca brzo opuštaju.

“Enterijer omogućava deci da prostor doživljavaju kao svoj – u njemu se opuštaju, uživaju i lako se sa njim identifikuju“, zaključuje autorka.
Foto-galerija
Grafički prilog

Faktografija
- naziv projekta: Frizzolino
- autorka: Jovana Milojevic, dipl. diz enterijera
- lokacija: Bulevar Mihajla Pupina 195, Novi Beograd
- godina: 2025.
- fotografije: Marija Stjepanović
Ko se boji boja još? Ovaj dečji salon u Beogradu sigurno ne!



