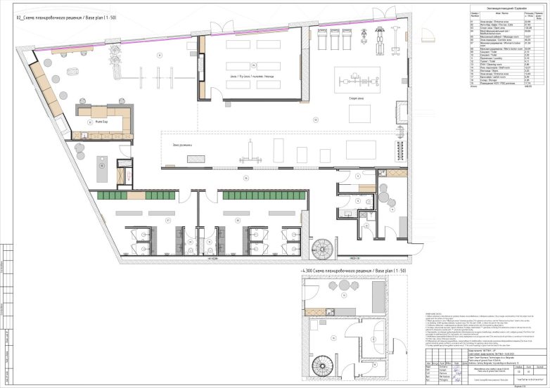
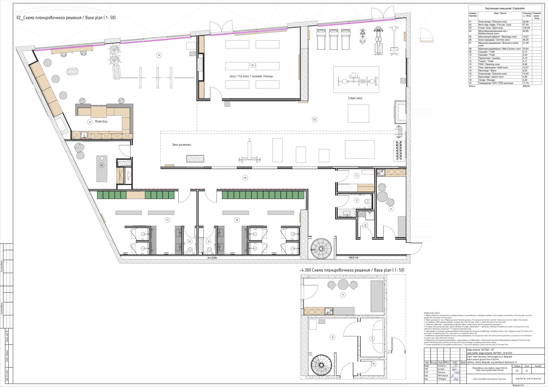
Na 180 kvadrata u prizemlju istorijske zgrade u Beogradu osmišljen je prostor za rekreaciju i oporavak zaposlenih kompanije Serb Tech. Enterijer kombinuje brutalističke materijale, kružne motive i promišljenu organizaciju prostora kako bi mala površina delovala znatno veće.
U prizemlju istorijske zgrade na prestoničkom Bulevaru vojvode Bojovića nalazi se sportski centar namenjen zaposlenima IT kompanije Serb Tech.
Projekat, koji potpisuje studio nefa architects, osmišljen je kao prostor za svakodnevnu rekreaciju i oporavak zaposlenih, dostupan 24 sata dnevno i sa odvojenim ulazom sa ulice.
Iako zauzima svega 180 kvadratnih metara, enterijer je organizovan tako da deluje otvoreno, pregledno i funkcionalno, bez vizuelne prenatrpanosti.
Udvostručen prostor zahvaljujući ogledalima
Centralni arhitektonski motiv čine kružna ogledala postavljena jedno naspram drugog, koja stvaraju efekat beskonačnih koridora i optički šire prostor.

Ovaj element ima i praktičnu funkciju, jer omogućava korisnicima da prate pokrete tokom vežbanja, ali istovremeno postaje i ključni deo vizuelnog identiteta enterijera.
Zahvaljujući ovom rešenju, prostor koji je relativno kompaktan pruža osećaj dubine i prostranosti.
Kružni motiv potom se ponavlja i u drugim elementima enterijera, kroz otvore za dnevno svetlo, prozore i druge detalje, čime se postižu jasna prostorna logika i vizuelna doslednost.
Centralni arhitektonski motiv čine kružna ogledala postavljena jedno naspram drugog.
Brutalistički materijali u savremenom enterijeru
Materijalnost prostora oslanja se na brutalističko nasleđe Beograda, ali je interpretirana na savremen način.

Eksponirani beton formira čvrstu arhitektonsku osnovu, dok industrijsko staklo dodatno naglašava karakter prostora.
Kako bi se postigao balans između robusnosti i komfora, arhitekte uvode i tople, taktilne drvene površine. Upravo ovaj kontrast između hladnih i toplih materijala stvara prijatan ambijent koji istovremeno deluje profesionalno i opušteno.
“Neutralna paleta boja dodatno naglašava materijale i omogućava da prirodno svetlo, koje prodire kroz otvore u prostoru, postane jedan od glavnih ambijentalnih elemenata“, otkrivaju autori.
Kako bi se postigao balans između robusnosti i komfora, arhitekte uvode i tople, taktilne drvene površine.
Zona za oporavak i neformalno druženje
Pored prostora za vežbanje, projekat uključuje i relaksacionu zonu sa fito-barom, zamišljenu kao mesto za predah nakon treninga, ali i za neformalnu komunikaciju među zaposlenima.
“Time se dodatno naglašava well-being koncept samog prostora”, navode arhitekte.

Na taj način sportski centar prevazilazi funkciju obične teretane i postaje deo šire strategije brige o dobrobiti zaposlenih. Kombinacija rekreacije, oporavka i druženja čini ovaj prostor malom urbanom oazom unutar radnog okruženja.
Rezultat je enterijer koji na relativno maloj površini uspeva da objedini funkcionalnost, jasno definisan vizuelni identitet i prijatnu atmosferu, prostor u kojem zaposleni mogu da se regenerišu, ali i nakratko izađu iz ritma svakodnevnog rada.
Foto-galerija
Grafički prilog

Faktografija
- naziv projekta: Sportski centar za IT kompaniju u Beogradu
- autor: nefa architects
- autorski tim: Elena Mertsalova, Dmitry Ovcharov, Vasilina Pavlova, Dilyara Mukhamedova, Sergey Mayorov, Tatiana Matveeva, Rustam Yusupov
- lokacija: Bulevar Vojvode Bojovića, Beograd
- površina: 180 m2
- godina: 2025.
- fotografije: Ilya Ivanov



