Enterijer salona na Autokomandi osmišljen je kao sofisticiran spoj savremene pariske elegancije i suptilnih afričkih referenci. Kroz razgovor sa autorkom otkrivamo kako je ostvaren sklad ovakva dva kontrasta.
U Beogradu je otvoren frizerski salon L’ Atelier 35 koji jasno pokazuje kako enterijer može da prenese identitet brenda, ali i kulturno poreklo njegovih osnivača.
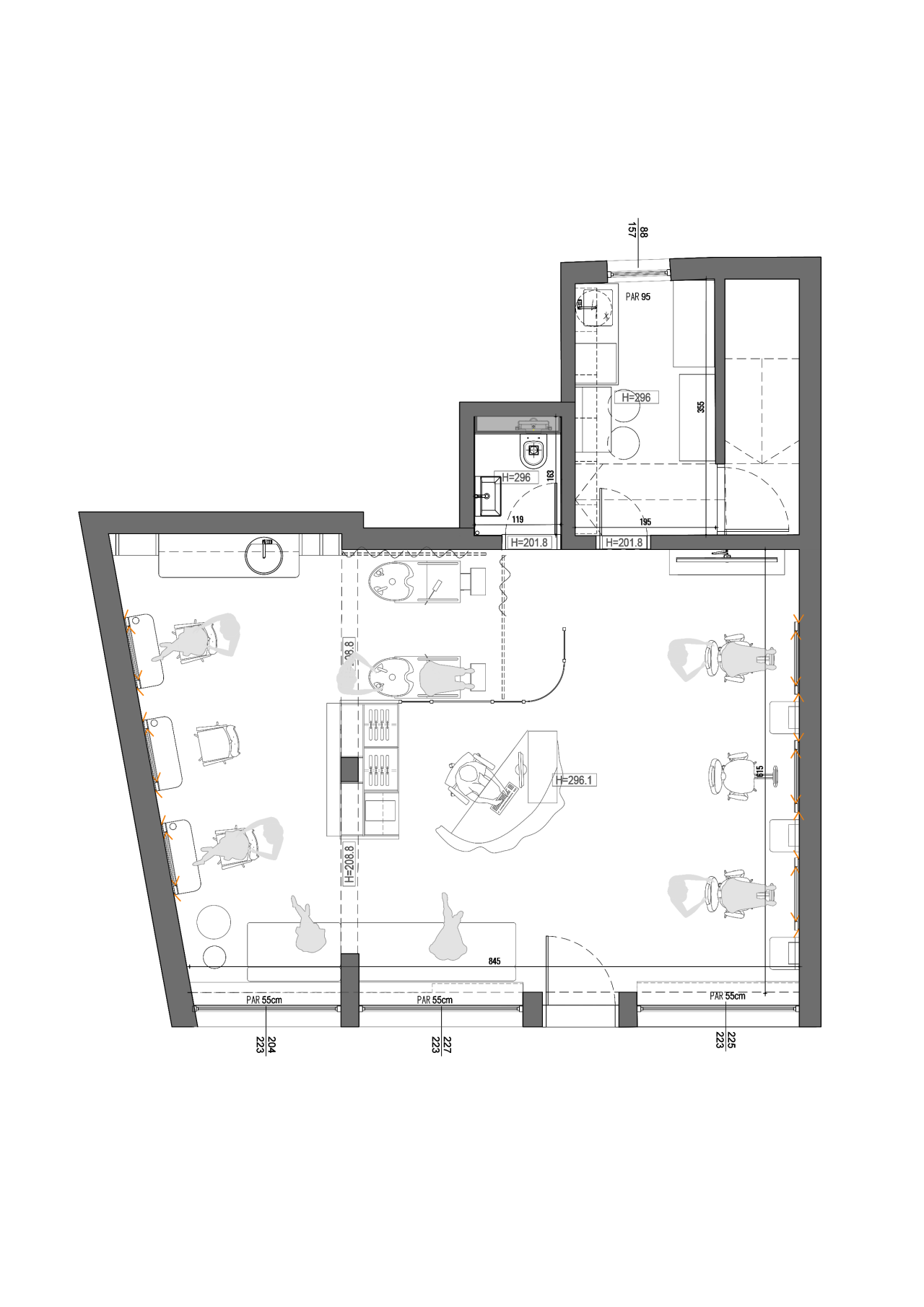
Projekat potpisuje Jovana Stojković, a prostor od 85 kvadrata oblikovan je kao internacionalni salon koji se oslanja na lokalni urbani kontekst, ali i na šire, globalne uticaje.
“Glavni koncept bio je da se u Beogradu formira internacionalni salon snažno ukorenjen u lokalni urbani kontekst, inspirisan savremenom pariskom elegancijom i obogaćen suptilnim referencama na afričku ornamentiku i materijalnost, koje zajedno odražavaju kulturne korene klijenata”, otkriva autorka.
Povezivanje različitih kultura
Jedan od ključnih izazova bio je pronaći balans između različitih kulturnih slojeva bez upadanja u doslovne interpretacije.

“Bilo je važno da prostor bude moćan i prepoznatljiv, ali ne tematski. Upravo uklapanje afričkih referenci u savremeni urbani kontekst Beograda predstavljalo je glavni projektantski izazov“, kaže Jovana Stojković.
Istovremeno, salon je morao da odgovori na potrebe raznolike klijentele i međunarodnog tima, što je dodatno uticalo na organizaciju i funkcionalnost prostora.
Jedan od ključnih izazova bio je pronaći balans između različitih kulturnih slojeva.
Kružna organizacija za intuitivno kretanje
Raspored prostora zasniva se na jasnoj i logičnoj cirkulaciji. Kretanje kroz salon je kružno, bez zastoja i “slepe tačke”, što omogućava efikasan rad i prijatan boravak.

Centralna zona okuplja recepciju i čekaonicu kao glavnu tačku orijentacije, dok su muški i ženski deo salona raspoređeni sa obe strane.
Zona za pranje kose postavljena je u sredini i funkcioniše kao prolaz koji povezuje sve celine u jednu logičnu celinu.
Kretanje kroz salon je kružno, bez zastoja i “slepe tačke”, što omogućava efikasan rad i prijatan boravak.
Materijali u službi atmosfere
Materijalizacija prati koncept i igra ključnu ulogu u formiranju atmosfere. Tamni pod i plafon unose dubinu i intenzitet, dok svetliji zidovi sa travertinskom teksturom smiruju prostor i uvode kontrast.

U fokusu se nalazi centralna “kamena” recepcija, koja deluje kao skulpturalni element i daje prostoru stabilnost i karakter.
Furnirani medijapan u tamnim tonovima dominira kroz nameštaj i obloge, dok detalji poput kože u zemljanim nijansama i zlatnih akcenata dodatno naglašavaju eleganciju.
“Reljefni duborezi u ogledalima diskretno upućuju na afričke motive, dok paravan sa teksturom inspirisanom afričkim tkaninama unosi sloj privatnosti i identiteta“, objašnjava Stojković.
U fokusu se nalazi centralna “kamena” recepcija, koja prostoru daje stabilnost i karakter.
Svetlo kao alat za rad
Osvetljenje je rešeno slojevito, kroz kombinaciju radne, ambijentalne i komunikacione rasvete. Ovakav pristup omogućava da prostor istovremeno bude funkcionalan za rad i prijatan za boravak.

Ogledala imaju integrisano unutrašnje osvetljenje za precizan rad, ali i spoljašnje svetlo koje doprinosi ukupnom ambijentu. Francuski neonski natpisi dodatno naglašavaju urbani karakter prostora.
Veliki stakleni portali obezbeđuju dovoljno prirodnog svetla, što je omogućilo upotrebu tamnijih tonova bez gubitka svetline. Akustika je ublažena kombinacijom tekstura i pažljivo organizovanim zonama.
Francuski neonski natpisi dodatno naglašavaju urbani karakter prostora.
Detalji koji prave razliku
U ovom enterijeru svaki element ima dvostruku ulogu – funkcionalnu i estetsku. Ogledala nisu samo radni alat, već i dekorativni elementi sa reljefom, dok paneli i paravani istovremeno definišu prostor i grade identitet.

Posebno se izdvajaju velika ogledala sa duborezima, centralna kamena recepcija i polukružni paravan sa stilizovanim afričkim simbolima, koji unosi dodatni sloj narativa u prostor.
“Upravo spoj evropske suzdržane forme i afričkog ornamentalnog detalja dao je prostoru snažan, ali kontrolisan identitet“, dodaje autorka.
Ogledala nisu samo radni alat, već i dekorativni elementi sa reljefom, dok paravani definišu prostor i grade identitet.
Vrednost iskustva
L’ Atelier 35 uspeva da spoji različite kulturne uticaje u jedinstven, savremen i funkcionalan prostor. Enterijer ne ostaje na nivou estetike, već aktivno podržava način rada i iskustvo korisnika.

“Salon deluje internacionalno, u skladu sa svojom namenom, ali istovremeno ima snažan i autentičan karakter. Upravo ta ravnoteža između identiteta, funkcionalnosti i atmosfere čini ga posebnim”, zaključuje Jovana Stojković.
Foto-galerija
Grafički prilog

Faktografija
- naziv projekta: L’Atelier 35
- autorka: Jovana Stojković Studio, M. Arch Jovana Stojković
- lokacija: Dr Milutina Ivkovića 2e, Beograd
- površina: 85 m2
- godina: 2026.
- fotografije: Jovana Rakezić



