Stan koji pomera granice klasičnog stanovanja i uvodi hotelski standard u svakodnevni život. Privatni spa centar, pažljivo zoniranje i savremeni luksuz definišu enterijer u kojem je komfor postavljen kao osnovna vrednost.
Apartman T u Beogradu projektovan je sa jasnom ambicijom da ponudi više od uobičajenog porodičnog stana.
Kako ističu autori iz studija INKA, “glavni koncept projekta zasnivao se na kreiranju osećaja privatnog luksuza, inspirisanog estetikom savremenih italijanskih hotela visoke kategorije”.
Ta ideja nije ostala na nivou estetike, već je pretočena u prostorna rešenja koja uključuju privatni spa centar u podrumu, hotelski koncipiranu master spavaću sobu i fluidno organizovan dnevni prostor.
Inspiracija je, prema rečima autora, proizašla direktno iz životnih navika klijenata i njihove potrebe za opuštanjem i ritualima u okviru doma, sa ciljem da se svakodnevni život učini kvalitetnijim i sadržajnijim.
Luksuzni stan i porodična funkcionalnost
Jedan od ključnih izazova bio je da se visok nivo luksuza uskladi sa realnim potrebama porodičnog života.

“Jedan od najvećih izazova bio je usklađivanje visokog nivoa luksuza sa porodičnom funkcionalnošću, kao i integracija novih sadržaja u postojeću strukturu novogradnje”, objašnjavaju autori.
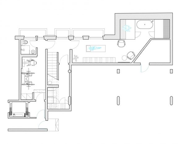
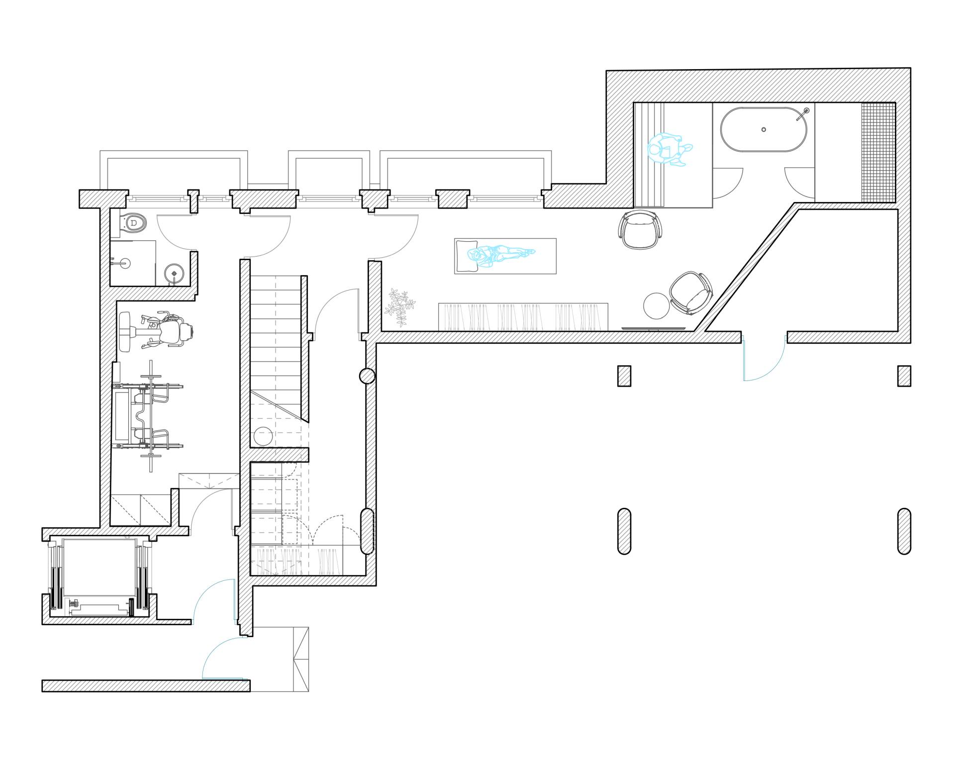
Posebno zahtevan segment projekta bila je prenamena podruma u “wellness” zonu, koja je podrazumevala kompleksna tehnička rešenja u pogledu ventilacije, hidroizolacije, akustike i osvetljenja, bez odricanja od estetskog kvaliteta.
Glavni koncept projekta proistekao je na osnovu kreiranja osećaja privatnog luksuza.
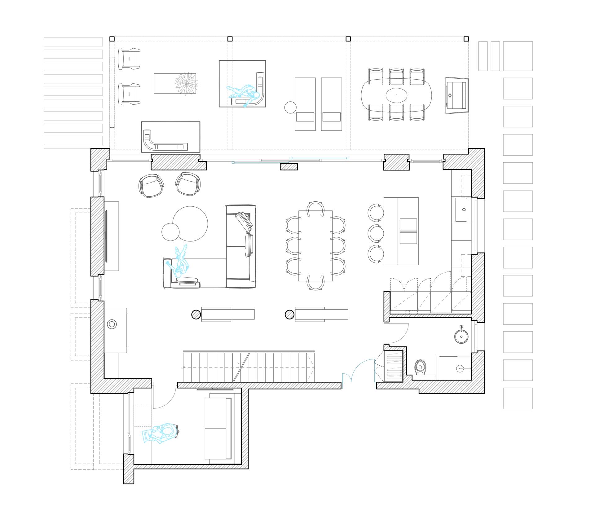
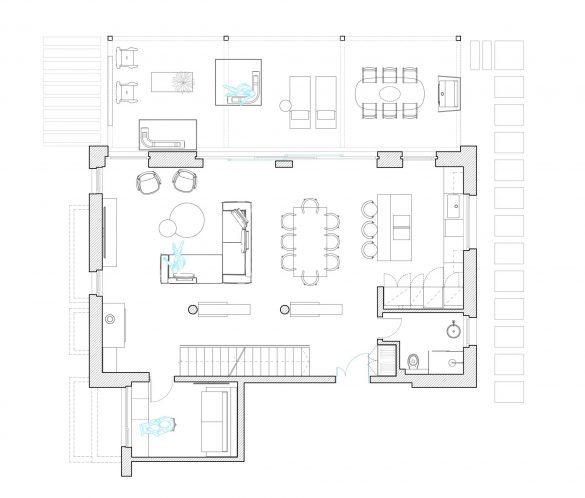
Zoniranje i prostorna protočnost
Organizacija prostora zasnovana je na preciznoj podeli privatnih i zajedničkih zona, uz stalnu težnju ka osećaju prostorne protočnosti.

Proširenjem spavaćih soba obezbeđen je dodatni komfor, dok je dnevna zona projektovana tako da omogućava vizuelnu povezanost različitih ambijenata.
Kao diskretan element razdvajanja uvedena je transparentna polica, koja funkcionalno deli prostor, ali ne narušava njegovu otvorenost.
Organizacija prostora zasnovana je na preciznoj podeli privatnih i zajedničkih zona.
Tehnologije u službi atmosfere
Materijalizacija enterijera oslanja se na prepoznatljive elemente savremenog italijanskog luksuza. Korišćeni su prirodno drvo u tamnim tonovima, keramika sa efektom mermera, staklo i metalni detalji u bronzano-zlatnim nijansama, uz visokokvalitetne tekstilne obloge.

Tehnološki aspekt prostora dodatno je unapređen integrisanom LED rasvetom, pametnim sistemima upravljanja osvetljenjem i klimom, kao i specijalizovanom spa opremom u “wellness” zoni.
Materijalizacija enterijera oslanja se na prepoznatljive elemente savremenog italijanskog luksuza.
Svetlo i tišina
Osvetljenje je projektovano slojevito, sa naglaskom na ambijentalnu rasvetu koja gradi atmosferu i naglašava materijale i volumene. Integrisane LED linije u ugradnim elementima dodatno ističu kontraste i doprinose sofisticiranom karakteru prostora.

Akustika je rešavana kroz primenu mekanih obloga, tekstila i drvenih panela, naročito u spa i fitnes zoni, kako bi se obezbedio mir i osećaj izolovanosti od spoljašnjeg sveta.
Akustika je rešavana kroz primenu mekanih obloga, tekstila i drvenih panela, naročito u spa i fitnes zoni.
Dizajn po meri savremenog života
Balans između estetike i funkcionalnosti postignut je detaljnim planiranjem svakog segmenta enterijera.

“Estetika nikada nije bila sama sebi cilj, već je uvek pratila funkcionalne zahteve“, naglašavaju autori. Ugradni nameštaj rađen je po meri kako bi se prostor maksimalno iskoristio, dok je pokretni nameštaj biran prema kriterijumima ergonomije, udobnosti i vizuelne lakoće.
Najizraženiji i najambiciozniji deo projekta svakako je transformacija podruma u luksuzni privatni spa centar.
Podrum kao lična oaza
Najizraženiji i najambiciozniji deo projekta svakako je transformacija podruma u luksuzni privatni spa centar.

“Posebno smo ponosni na transformaciju podruma u luksuzni privatni spa centar, jer predstavlja spoj arhitektonskog, tehničkog i dizajnerskog izazova koji je realizovan na visokom nivou”, ističu iz studija INKA.
Upravo taj prostor najjasnije oslikava osnovnu ideju Apartmana T, da to bude dom kao lična oaza mira i luksuza, potpuno prilagođena savremenom načinu života.
Foto-galerija
Grafički prilozi
Faktografija
- naziv projekta: Apartman T
- autor: INKA Studio
- lokacija: Beograd, Srbija
- površina: 260 m2
- godina: 2025.
- fotografije: Jovana Rakezić



